1945 Hendersonville Road Asheville, NC 28803

Other MLS #: 4185263 Courtesy Of Keller Williams Realty Mountain Partners

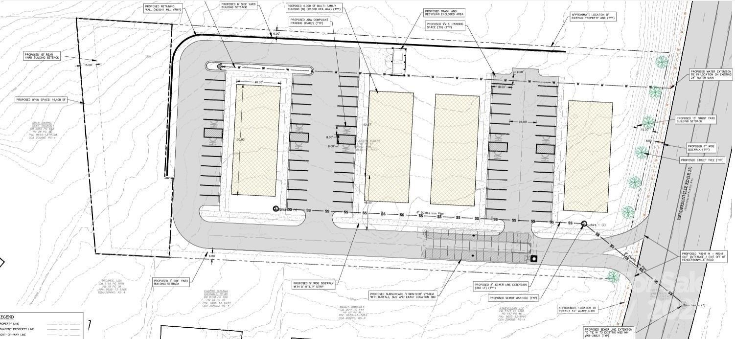
Property InformationDescription

Prime Hendersonville Road development opportunity. 215 feet of frontage just south of Long Shoals Road. Curently zoned RM6 for low density multifamily. Zoning would allow up to 107 units, parking requirements would bring that to 70, see attatched site plan. This property sees an average of 33500 cars pass by daily. Sewer is just across Hendersonville Rd and water, power, and natural gas are readily available. Engineered site plan for a 2 unit medical complex is available, reach out to listing agent for details. Seller is related to listing agent.
MORTGAGE CALCULATOR

Features

  • Legal Description: DEED DATE: 04/05/1994 DEED: 1792-0061 SUBDIV: BLOCK: LOT: SECTION: PLAT: 0000-0000
  • MLSID: 4185263

MAP & DIRECTIONS

Get Directions
1945 Hendersonville Road, Asheville, NC 28803
View Directions
Copyright © 2026 Canopy MLS. All rights reserved. All information provided by the listing agent/broker is deemed reliable but is not guaranteed and should be independently verified. Information being provided is for consumers' personal, non-commercial use and may not be used for any purpose other than to identify prospective properties consumers may be interested in purchasing.